Heiko Bertelt
Wolfgang Friemerding
Jürgen Kurzer
Stephan Möller
Rudolf Bollmann
Franz-Josef Rolfes

Aktuelle Dammer Politik

Parkanlage am Krankenhaus: Kompromiss in Sicht

Foto Bollmann
Löungsmöglichkeit aufgezeigt im Planungs- und Umweltausschuss 29.10.2020

Die Verwaltung berichtete über den aktuellen Planungsstand des Parkplatzes des Krankenhauses  an der Schubertstraße.
Im Dezember 2019 wurde ein Bauantrag für 58 Stellplätze an diesem Standort gestellt.
Zwischenzeitlich gab es einen Austausch zwischen dem Krankenhaus und dem Rechtsanwalt von 3 Anliegern dazu.
Der Rechtsanwalt hatte gegenüber dem Landkreis Vechta und dem Bauherrn Vorschläge zu grüngestalterischen Festsetzungen und Schallschutz zwischen den Grundstücken unterbreitet.
Diese Vorschläge wurden in die jetzige Planung aufgenommen, und zwar wurde der Abstand zu den angrenzenden Häusern auf 5,58 m vergrößert,
es soll eine Eingrünung mit 11 großkronigen Laubbäumen erfolgen und es ist die Errichtung einer Schutzwand (insb. zum Schallschutz) geplant.
Die Stellplätze reduzieren sich durch diese Maßnahmen auf 53.

Die FDP meint: Parkplätze direkt beim Krankenhaus hätten in ausreichender Zahl zur Verfügung gestellt werden können, wenn die Mitarbeiter des Krankenhauses auf dem Parkplatz "Im Hofe" dauerparken würden.
Auf eine Parkplatzanlage auf der Grünfläche hinter der Bahnhofstraße hätte dann verzichtet, und ein Patientengarten hergerichtet werden können.
Der Kompromissvorschlag als erstrebenswerte demokratische Lösung (Verkleinerung der Parkanlage, ökologischer Schutzstreifen und Lärmschutzmauer) entspricht dem Wunsch des Krankenhauses und der Anwohner.
Damit kann das Ende des Streits herbeigeführt werden zum Wohl aller Beteiligten.

Neubau der Kindertagesstätte "Holter Kapelle"

FDP Beratung über alternative Finanzierungsmöglichkeiten: Eigenregie oder ÖPP (Öffentlich-Private Partnerschaft)?

Heiko Bertelt
Ein privater Investor könne die Kita, für die die Stadt 4 Mio Euro veranschlagt habe, bauen, und die Stadt dann als Käufer aufreten. So könnte möglicherweise viel Bürokratie umgangen werden.
Wolfgang Friemerding
Man solle besser "die Finger von einem ÖPP-Modell lassen" (OV 30.10.20). Die Stadt solle die Kita in Eigenregie bauen.

Mehr


FDP fordert Überprüfung der Ampelanlage Südring/Westring/Vördener Straße

Grünphasen für Radfahrer bzw. Fußgänger nicht ausreichend

RM Möller
wies darauf hin, dass die Grünphasen für Radfahrer bzw. Fußgänger nicht ausreichend seien.... Er bat um Überprüfung, ob die Grünphase verlängert werden könne. Grundstücks- und Straßenbauausschuss 14.9.20
Mitteilung der Verwaltung
Aus Sicht der Straßenbehörde des Landkreises Vechta und der Niedersächsischen Landesbehörde für Straßenbau und Verkehr ist eine Begehung vor Ort entbehrlich,... da ausreichend Zeit ist, die Straße zu passieren, ohne dass ein Fahrzeug diesen Straßenbereich durchfahren darf. VO/0218/2020 09.10.2020

RM Möller wies darauf hin, dass die Antwort der Straßenbehörde nicht nur unbefriedigend war, sondern die Fragestellung gar nicht beantwortet wurde.
Grundstücks- und Straßenbauausschuss 26.10.2020

Mehr


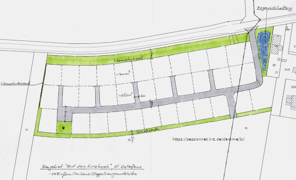
Baugebiet "Auf dem Kirchesch" Osterfeine

FDP kritisiert Sonderregelung bei der Bauplatzvergabe

Jürgen Kurzer
In den ersten 3 Jahren sollen auschließlich Bewerber aus dem Dammer Osten ein Grundstück erwerben dürfen.
"Diese Dreijahresfrist ist eine echte Blockade. Sie widerspricht dem Gleichheitsgrundsatz. Alle Dammer Bürger*innen müssen gleich behandelt werden.
(Grundstücks- und Straßenbauausschusses 26.10.20)

In Damme Atommüll-Endlager?

Soll auch unter den Dammer Bergen ein Endlager für hochradiaktiven Atommüll entstehen. Eine Potentialanalyse läuft.

Die Nachricht, dass auch in Damme wegen Tongesteinformationen und eines Salzstocks in die Auswahl für eine atomares Endlager gelangt sei, verlangt nach Aufklärung. Die FDP Damme sieht weder geologische noch vernunftmäßige Gründe, eine Endlagerung in Damme ernsthaft in Erwägung zu ziehen.

Mehr»


Baugebiet "Auf dem Kirchesch" Osterfeine

Problem der Wasserknappheit begegnen.

Heiko Bertelt
stellte im Planungs- und Umweltausschuss den Antrag, im Bebauungsplan festzuschreiben, auf jedem Grundstück je 100 Quadratmeter Fläche einen Kubikmeter Zisternenraum zum Auffangen von Regenwasser zu erstellen. (vgl. OV 18.09.2020)
Dieses Vorgehen könne beispielgebend für Damme sein, im Baurecht mehr Klimaschutzmaßnahmen zu verankern.
 

Neue Festhalle für die Carnevalsgesellschaft "Stein des Anstoßes" (OV 14.09.2020)

Die Anwohner des Straße Nordhofe befürchten Lärmbelästigung :


Foto: Bollmann
Wolfgang Friemerding
"Für das kulturelle Leben sei die geplante Veranstaltungshalle von großer Bedeutung. Die Carnevalsgesellschaft nutze seit 20 Jahren die Pausenhalle des Gymnasiums für einen Teil ihrer Veranstaltungen. ... Er halte die Befürchtungen der Anwohner wegen der Lärmbelastung aus dieser Erfahrung heraus für übertrieben. ... Die Stadt, der Landkreis und die Carnevalsgesellschaft seien zu einer guten Zusammenarbeit mit ihnen bereit." (OV 14.09.2020)

Mehr


Sanierung des Dersabads geht weiter...

Foto Bollmann

Die Sanierung der Funktionsgebäude (Umkleide-, Sanitäranlagen, Eingangsbereich, Kiosk) wird in Angriff genommen.
Der Arbeitskreis „Freibadsanierung“ hat einstimmig entschieden, einen Vorentwurf in die Ratsberatungen einzubringen.

mehr»


Naturschutzgebiet Dümmer: Erweiterung

Das Naturschutzgebiet umfasst derzeit 993 Hektar. Zusätzlich unter Schutz gestellt werden sollen 327 Hektar.
Davon sind 102 Hektar öffentliche Flächen und 225 Hektar Privatbesitz, wovon 152 Hektar als Grünlandflächen genutzt werden.
Die EU hat bereits 2018 ein Vertragsverletzungsverfahren gegen Deutschland eingeleitet – wegen Verzögerungen bei der Umsetzung der EU-Richtlinie zum Natura-2000-Flächennetz.

Die betroffenen Landwirte berufen sich auf eine Zusage der ehemaligen Landesregierung, im Jahr 2007, als das Naturschutzgebiet ausgewiesen wurde, die neuen Areale nicht unter Schutz zu stellen, allenfalls auf freiwilliger Basis.
Die Dammer FDP spricht sich in Zeiten des globalen Natur- und Klimaschutzes definitiv für eine Erweiterung von Schutzgebieten aus.
Die öffentliche Hand muss allerdings in enger, transparenter Zusammenarbeit mit den betroffenen Landwirten eine angemessene Entschädigung
für die Erweiterungsflächen bereitstellen.
Stefan Birkner (MdL) informiert sich bei der FDP Damme über die geplante Erweiterung des Naturschutzes Dümmerniederung.

OV 28.09.2020

Mehr»


Neubau einer Kindertagesstätte: Standortfrage

Die Stadt Damme errichtet im Bereich des geplanten Neubaugebietes „Holter Kapelle“ eine neue Kindertagesstätte

Die Stadt Damme ist darauf angewiesen, möglichst kurzfristig in die Planung für eine zusätzliche Kindertagesstätte im Stadtgebiet einzusteigen.
Hierzu bedarf es aber zunächst der Festlegung auf einen konkreten Standort (Vorlage: VO/0065/2020)
Die FDP spricht sich für den Standort "Holter Kapelle" aus, da hier u.a. das neue Baugebiet "Auwinkel" optimalen Zugang zu einer Kita erhält.

Mehr»


Wilde Müllablagerungen in Damme

Franz Josef Rolfes
Immer wieder wilde Müllablagerungen "Am Freibad" direkt unter dem Verbotsschild "Schutt abladen verboten!

Abfall bei den "Römerschanzen"

Mehr»


Straßenausbaubeiträge

 

Heiko Bertelt
Eine komplette Abschaffung der Straßenausbaubeiträge passt nicht für Damme.
Eine Umstellung auf eine grundsteuerbasierte Finanzierung bedeutet Steuererhöhung, die mit der FDP nicht zu machen ist.

Beispiel Mühlenstraße
„Info-& Fragerunde“ mit Jürgen Kurzer im Seniorenheim „Haus am Ohlkenberg“ 

Jürgen Kurzer
Eine Tempo 30 Zone am Ohlkenbergsweg und an der Lindenstraße ist eingerichtet.
Leider musste aber festgestellt werden, dass viele Fahrzeuge sich nicht an diese Geschwindigkeitsbegrenzung halten.
Es ist daher sinnvoll in dem fraglichen Bereich der 30 km/h-Zone Fahrbahnmarkierungen zur Verdeutlichung der Geschwindigkeitsreduzierung anzubringen.


Kreiselgestaltung

Kreisel in Damme noch ohne Bepflanzung


Kreisel an der Steinfelderstraße: Foto FDP Damme 2019

Als Eingangspforte zur Dammer Innenstadt könnten die Kreisel eine naturnahe Verschönerung gebrauchen.
 Die Anlage von Wildblumenwiesen mit Blumen und Gräsern, bestehend aus einer Saatgutmischung,
die extra für Verkehrsinseln zusammengestellt werden kann, wären eine Augenweide.

Die Art der Bepflanzung stellt einen Beitrag zur Artenvielfalt im Stadtgebiet dar.
Die FDP Damme wird neben der ökologische Gestaltung der Kreisel eine Ausschmückung mit dem Dammer Narren vorschlagen..
Damit wird dem einzigartigen Charakter Dammes als allseits bekannter Narrenhochburg Rechnung getragen.

mehr»


FDP Antrag: Mehr Biodiversität in Damme


Foto Bollmann

Die FDP Damme beantragt eine klimagerecht veränderte Grün- und Freiraumplanung in Damme.
Seitens der Verwaltung möge geprüft werden, welche allgemeinen städtische Flächen. für die Anlegung von Blühflächen oder sonstigen Anpflanzungen zur Förderung der biologischen Vielfalt geeignet sind. Gleichzeitig sollten auch private Bürger aufgefordert werden, sich an diesem Programm zu beteiligen, da auch für private Bereiche Fördermittel beantragt werden können.

Die Stadt Damme wird demnächst eine Arbeitsgruppe Biodiversität bekommen.
Die Arbeitsgruppe, der auch Vertreter der Landwirtschaft und des Naturschutzbundes angehören, will der Politik Vorschläge unterbreiten,
wie die Artenvielfalt in der Stadt besser geschützt werden kann.

mehr»


Verkehrsberuhigung in der Innenstadt


Foto FDP Damme 2019

"Zur Erhöhung der Aufenthaltsqualität in der Dammer Innenstadt sollen geschwindigkeitsdämpfende Maßnahmen als Elemente der Verkehrsberuhigung untersucht werden. Bei dieser Variante wird die Erreichbarkeit der Innenstadt nicht beeinträchtigt."
Einbahnstraßen sind nicht vorgesehen, dafür verkehrsberuhigte Bereiche (Begegnungszonen)

VEP Damme - 2019 Maßnahmenuntersuchung 99 / 161f.

Die FDP wendet sich gegen Einbahnstraßen. Der Vorschlag verkehrsberuhigte Bereiche einzurichten ist mit Abänderungen wiederholt gemacht worden. Er könnte zu einer Lösung beitragen.

weiter


Parkanlage beim Krankenhaus


Foto FDP Damme 2019

Kontroverse Diskussion

Soll auf dem im Eigentum des Krankenhauses befindlichen Grundstück ("Patientengarten")
eine Parkanlage errichtet werden?

FDP Diskussionsvorschlag

Ein Teil des Parkplatzes "Im Hofe" könnte als Dauer- und Ausweichparkplatz für das Krankenhaus ausgebaut werden.
Auf eine Parkplatzanlage auf der Grünfläche hinter der Bahnhofstraße könnte verzichtet und die Grünfläche als Patientengarten hergerichtet werden.

Heiko Bertelt im Verwaltungsausschuss (öffentl.) 6.11.2019


FDP-Antrag auf Änderung der Grenzen der Schuleinzugsgebiete

Die FDP möchte Zahl der Migrantenkinder besser auf die Dammer Grundschulen verteilen, damit die Integration schneller vonstatten geht.
Die Grundschule Damme sollte dabei entlastet werden, denn die meisten Migrantenkinder leben in ihrem Einzugsbereich.
Gegen die Stimmen der FDP votierte der Rat am 02.07.19 dafür,
dass Mädchen und Jungen nur aus den Ortschaften Nordhofe und Bexadde sowie vom Dammer Esch zur Grundschule Sierhausen gehen.
Wolfgang Friemerding kritisierte, mit diesem "Minimalkompromiss" sei der Grundschule Damme nicht geholfen.

Fotos Bollmann/FDP Damme